Logiciel plan de masse
Créez vos plans de masse facilement grâce aux fonctionnalités de modélisation de terrain
Un plan de masse pour votre projet de construction en moins de 2h
Le plan de masse projeté est une pièce indispensable pour le dépôt de permis de construire ou pour la déclaration préalable de travaux. Avec le logiciel pour plan de masse Cedreo, vous avez toutes les fonctionnalités nécessaires à l’élaboration de l’ensemble des éléments graphiques pour vos projets de construction ou rénovation de maison. Il n’a jamais été aussi facile de faire un plan !
Plan de masse
En moins de 20 minutes, dessinez le plan de masse et représentez toutes les informations permettant de faire valider votre demande d’autorisation d’urbanisme.
En savoir plus sur la modélisation de terrain

Vue du terrain en 3D
Une fois que le plan est tracé, aménagez votre projet grâce au catalogue de produits 3D afin d’avoir une vue 3D du terrain et de la maison. Cette perspective 3D est utile pour aider vos clients à comprendre l’implantation des différents éléments du projet.
En savoir plus sur les plans 3D

Visuel extérieur photoréaliste
En moins de 5 minutes, générez un visuel 3D photoréaliste pour aider vos clients à se projeter dans le projet. Il est indispensable pour convaincre vos clients et les rassurer.
En savoir plus sur les rendus 3D

Obtenez un plan de masse en moins de 20 minutes
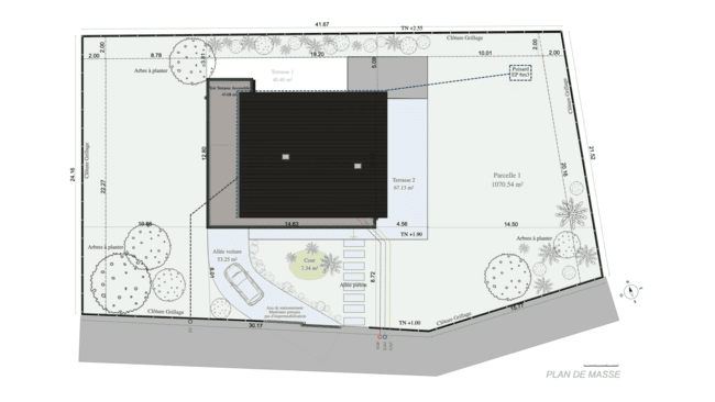
Avec Cedreo, il est très rapide de faire un plan de masse, en partant de l’import d’un plan, il ne faut que quelques clics pour dessiner, personnaliser et visualiser le terrain fini. Les fonctionnalités sont pensées pour vous faire gagner du temps grâce à de nombreuses automatisations et vous permettre de présenter les informations indispensables :
- Limites de propriété avec le type de clôture choisis
- Implantation de la maison, la terrasse, piscine ou abris de jardin
- Différents accès au terrain et zones de stationnement
- Réseaux et canalisations
- Symboles des arbres et zone de végétation
- Rose des vents
- Lignes de recul
- Annotations (pour préciser les informations de revêtements, constructions existantes, aménagements extérieurs…)

Un tracé de parcelle intuitif
Grâce à l’import de plan en format dwg, dxf, jpeg, png ou pdf vous pouvez sélectionner les informations importantes qui vous servent à tracer votre plan de masse comme les limites, cotes et l’orientation du terrain.
Ce plan est utilisé en calque et permet un tracé très simple et rapide grâce au magnétisme sur les limites. Vous pouvez ajouter les lignes de recul pour facilement implanter la maison.

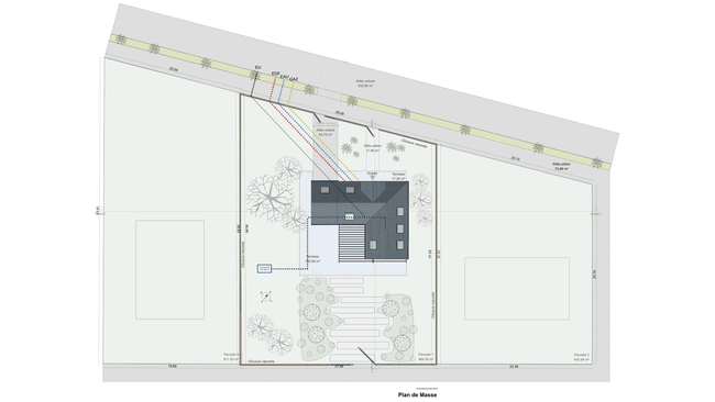
De la parcelle au terrain fini en quelques clics
Après avoir tracé la parcelle, vous renseignez les points ou lignes d’élévation pour créer les pentes du terrain, et gérer les retenues de terre (talutage et mur de soutènement) tout en visualisant simultanément en 3D dans la fenêtre dédiée.
Le tracé des différentes zones extérieures telles que le parking, allées, terrasse, piscine est simple. Il ne vous reste plus qu’à ajouter les symboles utiles (arbres, zone de végétation…)

Tous vos documents à un seul endroit pour préparer vos documents APS et PC
Vos plans de masse sont disponibles dans le dossier de votre projet, avec vos plans de niveaux, plans de coupe, plans de façade.
L’ensemble de ces documents vous permet de créer vos APS et PC directement dans Cedreo. Si vous modifiez les plans, ils sont automatiquement mis à jour dans vos documents de présentation.

Une boîte à outils complète pour faire un plan rapidement
Plusieurs fonctionnalités intuitives sont disponibles pour vous permettre de passer du terrain naturel au terrain fini en un minimum de temps.

Importer des plans
Importez le plan de cadastre ou géomètre aux formats pdf, jpeg, png, dwg ou dxf et utilisez-le comme calque afin de tracer votre terrain naturel en incluant les informations utiles à votre plan de masse.

Dessiner en 2D et visualiser en 3D
Avec Cedreo, la vue 3D est générée automatiquement dans une fenêtre séparée au fur et à mesure que vous tracez en 2D. Vous pouvez apporter des modifications dans l’une des fenêtres et les voir reflétées dans l’autre.

Dessiner et imprimer à l’échelle
Dessinez facilement les plans à l’échelle et téléchargez-les en 300dpi pour la plus grande précision.

Altimétrie du terrain et élévation de la maison
Représentez simplement les reliefs du terrain grâce aux points ou lignes d’élévation pour avoir le terrain fini avec l’implantation et l’élévation de la maison.

Zones de parking, allée et cour
Dessinez vos zones d’accès très facilement, un clic pour chaque angle et ajustez l’élévation en 1 clic pour rejoindre les différentes hauteurs (rue, entrée de garage…). Vous pouvez sélectionner les bords arrondis ou rectilignes en 1 clic, avec ou sans bordures.

Créer des talutages et murs de soutènement
Une fois le relief créé, ajoutez un mur de soutènement en 1 clic et personnalisez-le (hauteur, épaisseur, revêtement, s’il est horizontal ou suit le terrain) et ajustez les pentes des talutages.

Modifier les plans simplement
Editez votre plan de masse facilement et choisissez d’afficher ou non des informations sur le plan : les cotes, symboles, les revêtements de la maison, la rose des vents, la végétation, le plan de coupe.

Ajouter des symboles et annotations
Représentez les arbres à planter et l’aménagement paysager, précisez des informations comme le type de clôture ou des murs de soutènement.

Partager les plans
Exportez facilement les plans en jpg ou dxf pour les imprimer ou les partager avec vos clients.
Du plan de masse au rendu 3D photoréaliste
Cedreo vous permet de créer vos plans de masse pour vos dossiers de permis de construire ou déclaration préalable de travaux mais également des vues en 3D pour aider vos clients à se projeter et visualiser le projet facilement avec ses contraintes liées au terrain. Voici quelques exemples :

Plan de masse

Plan de masse d’une maison en lotissement

Plan de masse avec les réseaux

Plan extérieur en 3D

Plan 3D avec aménagement paysager

Plan 2D avec avec piscine

Rendu 3D extérieur

Rendu 3D extérieur

Rendu 3D extérieur
Prêt à tracer avec le logiciel de plan de masse Cedreo ?
Lisez ce guide pour savoir comment créer facilement votre premier plan de masse étape par étape et préparer votre projet de construction complet.
Comment faire un plan de masse avec Cedreo ?Ce qu’ils pensent de Cedreo
“Cedreo devient le logiciel standard du marché, si on ne l’a pas, on ne pourra bientôt plus suivre.”
“Nous avons gagné en fluidité dans la relation avec nos clients. Je ne sais pas comment je ferais sans Cedreo !”