Logiciel de modelisation de terrain 3D
Dessiner un plan de terrain, c’est facile et rapide avec Cedreo !
Un terrain fini modélisé en 20 minutes
Un logiciel complet pour concevoir et aménager facilement un terrain fini avec implantation de la maison.
Plan de terrain 2D / 3D
Tracez en 2D le terrain naturel tel que décrit par le géomètre et modifiez le pour concevoir le terrain fini et aménagé. Importez le plan du cadastre ou le plan de géomètre, utilisez-le comme calque pour commencer à modéliser la parcelle et les zones du terrain fini avec les retenues de terre.

Modelisation terrain 3D
Pour faciliter la conception et gagner en efficacité, visualisez votre terrain en 3D pendant que vous tracez en 2D. A chaque étape du tracé, une fenêtre de visualisation 3D permet de contrôler le tracé. Complétez la modélisation du terrain, modifiez et personnalisez les revêtements et l’aménagement extérieur et générez des rendus 3D photo réalistes en quelques minutes.

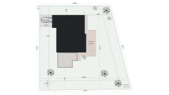
Plan de masse
Après conception du terrain fini, Cedreo permet de générer le plan de masse du projet à l’échelle, en quelques clics en ajoutant des lignes de recul et l’implantation du bâti. Obtenez automatiquement le calcul de la superficie totale du terrain, de l’emprise au sol et de la surface de pleine terre.

Définissez les zones de terrain
Utilisez les fonctionnalités de l’étape “Extérieur” et définissez les zones de terrain en quelques clics pour les faire apparaître sur vos plans et gérez les élévations pour modéliser le terrain fini de manière précise et détaillée.
- Import du plan du cadastre ou du plan de géomètre aux formats pdf, jpg, png, dwg ou dxf
- Tracé de parcelle en quelques clics
- Gestion des points d’élévation de terrain
- Tracé des zones de terrain fini: zones de végétation, parking, terrasses…
- 2 types d’élévation des zones de terrains: à plat ou suivant la forme du terrain
- Gestion des allées, rectilignes ou arrondies
- Bordures automatiques
- Retenues de terres: talutage et murs de soutènement
- Déblais, remblais automatiques
- Délimitations de terrains: haies ou murets
- Zones de végétation
Aménagez le terrain en 3D
Cedreo facilite la conception de terrain. Gagnez du temps en traçant intuitivement et visualisez instantanément votre projet en 3D.
Représentez le terrain fini avec ses matériaux et son aménagement complet. Sélectionnez vos revêtements dans une large bibliothèque de bardages, briques, parements, crépis, carrelages, dallages, pavés, lames de terrasse, graviers, etc. Et pour une personnalisation complète du projet, aménagez-le en choisissant parmi les 3000 objets 3D de la bibliothèque Cedreo: mobilier de jardin, végétaux, limites de propriétés, carports et abris, etc.
En savoir plus sur l’aménagement 3D
Ajoutez le bâti sur le terrain fini
Cedreo est le logiciel d’architecture de référence pour les professionnels de la construction et de la rénovation. Tracez les plans de vos projets de maison en 2D et 3D et modifiez l’implantation sur les plans de terrain..
- Tracez le plan de maison simple et intuitif
- Tracez en 2D, visualisez simultanément en 3D
- Modifiez le positionnement du bâti: déplacez ou pivotez la maison sur le terrain
- Modifiez l’élévation du sol fini
- Ajustez les zones de terrain en fonction du positionnement de la maison
- Le bâti suit automatiquement les élévations de terrain

Générez des rendus photo réalistes du projet
Aidez vos clients à se projeter en présentant un projet de maison complet avec des visuels 3D extérieurs. Les fonctionnalités de modélisation 3D de Cedreo vous permettront de dessiner facilement en 3D et de simuler un modèle de terrain fini avec aménagement de jardin complet.
Offrez à vos clients une immersion complète dans leur projet de construction ou de rénovation. Positionnez une caméra sur le terrain pour choisir un angle de vue et générez un visuel photo réaliste du terrain fini et aménagé avec le bâti en 3D.
Cedreo est un logiciel simple d’utilisation et 100% en ligne pour des images 3D rapides, quel que soit l’ordinateur que vous utilisez.

Des fonctionnalités gain de temps pour la modélisation 3D de terrain
Les fonctionnalités de Cedreo, utilisé comme logiciel pour plan de terrain, sont pensées pour accélérer la phase de dessin, et permettre aux professionnels de la construction et de la rénovation de fournir à leurs clients une proposition de projet complète incluant les plans de maison, l’implantation sur le terrain, la modélisation du terrain fini, le plan de masse et le chiffrage de projet.
Import de plan
Importez le plan de cadastre ou le plan de géomètre aux formats pdf, jpg, png, dwg ou dxf et utilisez-le comme calque pour gagner en précision et en efficacité.
2D et 3D
Votre projet prend vie en 3D au fur et à mesure du tracé. Pour faciliter la conception, les 2 vues, 2D et 3D, sont affichées simultanément dans votre espace Cedreo.
Altimétrie
Gérer facilement les terrains en pente ou les différences de niveaux en ajoutant des points d’élévations au terrain.
Talutage
Ajoutez du talutage automatique sur à vos projets sur terrains en pente. Modifiez la pente ou la forme du talus en déplaçant ou en ajoutant des points, quelque soit l’inclinaison du terrain.
Murs de soutènement
Gérez automatiquement les retenues de terre: ajoutez des murs de soutènement, modifiez leur épaisseur et leur hauteur, définissez le type de soutènement à intégrer: mur horizontal ou qui suit la pente du terrain.
Aménagement extérieur
Modélisez le terrain fini dans ses moindres détails en ajoutant des revêtements extérieurs adaptés au projet de vos clients et en aménageant les extérieurs en 3D: piscine, mobilier extérieur, éclairage, etc.
Impression des plans à l’échelle
Téléchargez le plan de masse aux formats jpg ou dxf et imprimez-le à l’échelle, dans différents formats et en personnalisant l’orientation et la taille des marges.
Tableau de surface
Le tableau de surfaces est généré automatiquement et téléchargeable avec les surfaces du projet de maison et les surfaces liées au terrain (superficie totale, emprise au sol, surface pleine terre).
Partage de plans
Idéal pour les équipes qui travaillent sur la base d’un catalogue de plans ou pour partager les projets avec un bureau d’études. Vos plans sont stockés dans Cedreo, prêts à être partagés et modifiés à tout moment.
Exemples de terrains modélisés avec Cedreo
Utilisez le logiciel en ligne Cedreo pour la conception et la modélisation de terrain. Prise en main rapide et facile, quel que soit le type de projet.

Plan de maison sur terrain en pente

Plan de maison sur terrain étroit en longueur

Plan terrain 500m2 avec maison

Plan de maison avec sous-sol

Terrain fini avec aménagement extérieur

Modélisation terrain paysager

Plan 3d terrain

Terrain avec piscine

Rendu 3D d’une maison sur terrain en pente
C’est facile à utiliser.
Mais vous pouvez toujours compter sur le support Cedreo.
Pour une prise en main encore plus rapide.
Parce que vous pouvez toujours aller plus loin et gagner du temps.
Ce sont les utilisateurs qui en parlent le mieux
Cedreo devient le logiciel standard du marché, si on ne l’a pas, on ne pourra bientôt plus suivre.
Nous avons gagné en fluidité dans la relation avec nos clients. Je ne sais pas comment je ferais sans Cedreo !