Planos de Salones
Con Cedreo, puedes crear rápidamente planos de salones que ayuden a tus clientes a visualizar su nuevo espacio y a cerrar acuerdos más rápido.

Diseña Planos de Salon Profesionales en Minutos
Optimiza tu proceso de diseño: crea planos de salones rápidos y magistrales, así como renderizados con Cedreo. Con este programa fácil de usar, puedes diseñar los planos de los salones en solo unos cuantos clics, arrastrar y soltar elementos de mobiliario y materiales, y generar rápidamente renders 3D para ayudar a tus clientes a visualizar sus salones antes de que siquiera comience la construcción de la casa.
Más información sobre el programa para hacer planosPlanos de Salones en 2D
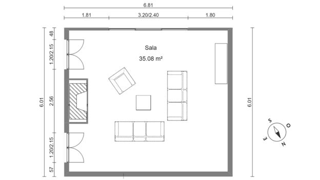
Diseña salones con una vista simplificada desde arriba al estilo de los planos arquitectónicos tradicionales. Comienza desde cero o importa planos existentes para acelerar tu proceso. La edición intuitiva, el codificado por colores, y las representaciones de mobiliario te permiten dibujar planos de planta en 2D que mejoran la comprensión del cliente y la comunicación.
Más información sobre planos 2D

Plano Salón en 3D
Generar planos realistas en 3D ya no es un desafío gracias a Cedreo. Convierte rápidamente tus diseños en 2D en visualizaciones en 3D con solo un clic. Agrega detalles con materiales personalizables, texturas, colores, iluminación y decoración para crear una presentación realista que consigue la aprobación del cliente.
Más información sobre planos 3DVisualización de Planos de Salones en 3D
La visualización es clave al vender un nuevo proyecto, los planos en 2D y 3D permiten a tus clientes hacerlo con una visión general de su proyecto de construcción de casa. Para añadir ese toque personal que realmente ayuda a tus clientes a verse a sí mismos en su futuro salón, nuestro programa te ayuda a crear renders en 3D fotorealistas.
Más información sobre renders 3D
6 Claves para la Distribución de los Salones
Para dibujar un plano de salón con éxito, tendrás que tener en cuenta algunos factores importantes. Las siguientes directrices te ayudarán a asegurarte de que el diseño que realices logre el mejor equilibrio posible entre belleza y funcionalidad.

Dimensiones del Salón
Diseña salones que sean cómodos para las necesidades de tus clientes encontrando las medidas adecuadas. La longitud y anchura ideales de la habitación se determinarán según los hábitos de los residentes y el tamaño de su hogar. Por ejemplo, una familia numerosa puede necesitar mucho espacio para sentarse y para que los niños jueguen. Puedes modificar fácilmente las dimensiones de tu plano con Cedreo arrastrando y moviendo las paredes.

Función del Salón
Los salones suelen ser áreas versátiles que cumplen muchas funciones. Pueden ser el espacio principal para entretenerse, relajarse, e incluso trabajar a veces. Tu boceto del salón deberá tener en cuenta las diferentes funciones que tiene en mente tu cliente, proporcionando la distribución y el diseño adecuados para cada una.

Muebles y Decoración
Ningún plano está completo a menos que incluya la disposición de los muebles y la decoración del hogar. Al añadir estos elementos, tu cliente puede hacerse una idea clara de cómo puede ser utilizada la zona, y de cuánto espacio tienen a su disposición. Añadir estos elementos es más fácil con la librería de muebles y decoraciones de habitaciones de Cedreo, los cuales pueden ser modificados en tamaño, estética y orientación.

Fuentes de Luz Natural
Los bocetos más útiles de los salones tienen en cuenta las fuentes de luz natural y cómo estas afectan a las condiciones de iluminación interior. Esta información puede ser crucial para tomar decisiones de diseño y representarla con precisión puede dar a tus clientes expectativas más realistas de cómo será el aspecto de la sala en el día a día. Cedreo te permite ajustar la posición del sol y simular las condiciones de luz tanto de día como al atardecer.

Puntos Focales Principales
Un buen diseño de salón guiará la mirada hacia los puntos focales: características distintivas que sirven como el foco estético principal. Estos pueden ser piezas de decoración destacadas como cuadros, o incluso ventanas con vistas fantásticas. Tener en cuenta los puntos focales en tu plan puede ayudarte a crear imágenes más atractivas para tus clientes y a entusiasmarlos con el diseño.

“Zonas” del Salón
Incluso los planos de salones pequeños pueden tener espacios distintos, o “zonas”. Estos son típicamente espacios que sirven para diferentes propósitos, vinculandose de nuevo a la consideración de la función. Por ejemplo, una zona del salón puede estar dedicada a ver la televisión, mientras que otra puede estar más concentrada en la conversación, proporcionando un espacio definido para una disposición separada de los asientos.
Ejemplos de Planos de Salones
Aquí tienes algunas inspiraciones de planos para salones que te ayudarán a ver lo que puedes crear y diseñar con Cedreo.

Distribución de salones pequeños

Distribución para salones grandes

Planos de salones rectangulares

Distribución para salones abiertos

Distribución para salones cuadrados

Espacio abierto para el salón

Distribución del salón con chimenea

Espacio abierto para el salón con fuente de luz natural
Preguntas Frecuentes Sobre Planos de Salones
¿En qué planta debería estar el salón?
Como en cualquier proyecto arquitectónico, la ubicación de un tipo de habitación depende completamente de las necesidades del usuario final y de la función de los espacios circundantes.
Por ejemplo, las viviendas para personas mayores o discapacitadas pueden considerar más adecuado tener los salones al mismo nivel que las habitaciones. Los salones destinados a funcionar como zonas de juego para la familia pueden ser mejor en niveles separados de las zonas de entretenimiento u oficinas domésticas.
¿Qué medidas debería usar para el plano de un salón?
Las medidas del salón deben tener en cuenta tanto el estilo de vida del usuario como los posibles muebles. Los planos para salones pequeños puede que solo necesiten unas dimensiones de 3×4 metros en total, pero las habitaciones más grandes con espacios seccionados pueden requerir dimensiones de 4.5 x 6 metros o más.
Cedreo hace que sea sencillo comprobar si los planos de tu salón tienen las medidas adecuadas con cálculos automáticos del área de la habitación y visualizaciones opcionales de las medidas.
¿Cómo decorar un plano de salón?
Decora fácilmente tus bocetos de salón con la librería de productos personalizables en 3D de Cedreo, que contiene más de 3000 productos. Elige entre muebles y decoraciones de varios estilos para considerar múltiples ideas de distribución: nórdico, contemporáneo, encantador, lujo moderno, etc. Estas categorías ordenadas permiten un rápido emparejamiento, resultando en diseños de interiores impresionantes y coherentes.
Los muebles se pueden colocar en cualquier punto disponible de tu plano de Cedreo y rotar a la orientación deseada.
¿Cómo elijo la distribución adecuada para el salón?
Existen todo tipo de distribuciones para salones, como se muestra arriba, y suelen depender del tipo de proyecto de construcción. Ya sea un proyecto de nueva construcción, remodelación o renovación, el espacio disponible, la ubicación de las ventanas y la calefacción son las características técnicas a tener en cuenta. Una vez tenidos en cuenta estos aspectos, puedes usar el programa de Cedreo para generar múltiples propuestas de distribución del salón y encontrar la que mejor se adapte a los deseos y necesidades de tu cliente.