Planos de Casas con Medidas
La cómoda herramienta de diseño online de Cedreo permite presentar los planos de los clientes de forma atractiva.
Crea Planos de Casas Con Medidas Reales en Cuestión de Minutos
Con Cedreo, puedes crear planos profesionales sencillos en cuestión de minutos. Dibuja planos de cero o carga un plano ya existente. Mueve o añade paredes y Cedreo actualizará automáticamente las medidas de tu plano. Añade mobiliario y texturas para ayudar a tus clientes a visualizar el aspecto que tendrá el proyecto una vez terminado.
Más información sobre el programa para hacer planos
Dibuja Planos de Casas Con Medidas Fácilmente
Cedreo es la plataforma a la que acuden constructores, reformadores y diseñadores de interiores para dibujar y visualizar planos de viviendas con medidas completos. Ahora resulta más fácil que nunca crear planos con medidas en línea. Haz que tus diseños cobren vida en 2D y 3D para ofrecer presentaciones más profesionales a tus clientes. Además, hazlo todo en cuestión de minutos. Tu tiempo es valioso, así que permítenos ayudarte a sacar el máximo partido a tus proyectos y a ofrecer resultados de calidad.
Todas las Medidas del Plano en un Solo Lugar
Las medidas de los planos son necesarias para planificar, diseñar y completar proyectos de nueva construcción y reformas. El programa para hacer planos de Cedreo te ayuda a crear planos con todas las medidas que necesites.
Metros vs Pies
Cedreo tiene usuarios en todo el mundo, lo que significa que es importante que ofrezcamos la posibilidad de ver las medidas tanto en pulgadas como en el sistema métrico decimal. Si trabajas con clientes extranjeros, es posible que también necesites cambiar entre metros y pies, y con Cedreo es muy sencillo.

Configurar Medidas
Las medidas interiores y exteriores difieren para obtener las dimensiones totales y el espacio habitable real. Ambas medidas son necesarias para cosas distintas. Puedes añadir todas las dimensiones o incluir solo las que desees ver.

Calcular Superfície Total
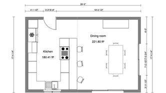
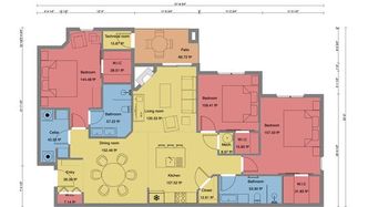
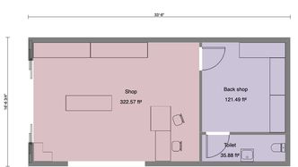
El cálculo de la superficie total, así como de las habitaciones específicas, ayuda a los diseñadores a crear espacios funcionales y aprovechables. Con la sencilla tabla de superficies de Cedreo podrás ver la superficie total de una planta, habitación o casa entera.

¿Por qué Necesitas Planos de Viviendas con Medidas?
Hay muchas razones por las que añadir medidas a los planos resulta beneficioso. Aquí tienes algunos ejemplos:
Ventas y Marketing Inmobiliario
Si los clientes no pueden visitar la casa o aún no está terminada, pueden tener problemas para visualizar el espacio. Compartir planos detallados con dimensiones puede ayudar a los clientes a entender el espacio y llegar a un buen acuerdo.
Cerrar las Ventas de Remodelaciones
A menudo, a los propietarios les resulta difícil entender los entresijos de una reforma. Los planos detallados con las medidas ayudan a los clientes a visualizar los metros cuadrados que se añadirán a su vivienda actual.
Comunicar Medidas
Muchas personas participan en proyectos de construcción y de reforma. Los planos con medidas ayudan a comunicar fácil y eficazmente los detalles del proyecto a todo el mundo, desde los diseñadores hasta los constructores.
Calcular Superfícies
Una vez añadidas las medidas al plano, la tabla de superficies de Cedreo se actualiza automáticamente para mostrarte la superficie total, así como la superficie por habitación. Así se puede planificar la distribución del mobiliario, estimar la ventilación y los materiales necesarios, así como el valor de compraventa.
Evitar Errores Caros
Conocer las medidas y la superficie de todos los elementos, desde las paredes hasta las encimeras, ayuda a evitar un exceso de pedidos de materiales, electrodomésticos de tamaño incorrecto, etc.
Requisitos para la Licencia de Obras
Los grandes proyectos de construcción y reformas necesitan permisos de obras. A menudo, para recibir estos permisos tendrás que presentar un plano con medidas.
Ejemplos de Planos con Medidas
Ofrece a tus clientes la imagen más profesional posible. Ayúdales a visualizar el proyecto final con el software para hacer planos de Cedreo. Impresiona a tus clientes con planos 2D y 3D con medidas que darán vida a tu diseño y a su visión.

Plano general de la casa con medidas

Planos de habitaciones con medidas

Plano del salón con medidas

Planos de cuartos de baño con medidas

Planos de cocina con medidas

Plano del patio con medidas

Planos de casas 3 dormitorios con medidas

Planos de casas de una planta con medidas

Planos de pisos pequeños con medidas
Entender un Plano de una Casa Con Medidas
Los planos con medidas pueden resultar a veces un poco agobiantes. A continuación te mostramos algunas formas de entender los planos detallados con sus medidas.
Planos a Escala
Los dibujos se hacen a escala. Se utilizan fracciones estándar en relación con el tamaño real del proyecto.

Medidas del Plano
Al crear un plano del solar con medidas muestra las dimensiones de toda la parcela, así como de los edificios de la propiedad.

Superficie Total de la Casa
Calcula la superficie total de la vivienda en medidas imperiales o métricas.
Altura del Techo
Añade las medidas de las alturas de los techos en cada planta para determinar los huecos de puertas y ventanas.

Medidas de la Habitación
Planos detallados con las dimensiones y superficies de cada habitación, incluidas las zonas diáfanas.

Características de la Distribución
Medidas para los electrodomésticos, componentes de la cocina y baño, así como puertas y ventanas, para garantizar que todo encaja correctamente.
Cómo Diseñar un Plano Con Medidas
Un simple plano con medidas es un diseño básico de una vivienda, pero no hay razón para no convertirlo en una presentación visual atractiva y detallada. Cedreo te ofrece las herramientas que necesitas para crear fácilmente planos repletos de características que harán felices a tus clientes.
Paso 1: Empezar desde cero o importar una imagen
Crea un plano desde cero o cargando uno ya existente con las medidas de tu casa. Podrás cambiar el tamaño del plano e incluso ampliar o reducir las paredes. Para personalizar un plano existente, basta con dibujar directamente sobre él. Con el modo de trazado continuo, es fácil dibujar paredes y hacer cambios en tiempo real.

Paso 2: Dibujar paredes y añadir aberturas
Lo siguiente que hay que hacer es añadir las paredes interiores para dividir la superficie global en habitaciones. Una buena regla es empezar por la habitación más grande de la casa y construir las demás a su alrededor. Una vez añadidos los pisos y las paredes interiores, el siguiente paso es incluir los huecos de la pared, como puertas y ventanas, de la colección de productos Cedreo. Utiliza el software para duplicar las aberturas de las paredes y mantener así las medidas exactas. Arrastra y suelta las puertas en su lugar, y la vista en 3D se actualizará en tiempo real para mostrar las novedades.

Paso 3: Añadir el tejado
Los usuarios pueden añadir un tejado automáticamente gracias a la herramienta de diseño online de Cedreo, basándose en las medidas exactas de los niveles del edificio. Puedes elegir entre varios tipos de tejado, como tejados múltiples, a dos aguas, de una sola agua o planos. Con la herramienta de automatización de tejados, añade el tejado con un solo clic. Añade elementos extras como buhardillas, bajantes y canalones. Una vez que hayas añadido una pieza de canalón, Cedreo puede añadir automáticamente el resto con un solo clic.

Paso 4: Añadir las medidas
Personaliza fácilmente el tamaño de las habitaciones, activa o desactiva las medidas del plano, o muévelas dentro de tu plano, todo ello durante el proceso de planificación. Incluso puedes decidir qué dimensiones mostrar en el plano cuando se renderiza para presentarlo a tu cliente. Identifica con colores las diferentes secciones del plano y añade símbolos de muebles y electrodomésticos para que el plano 2D sea aún más fácil de leer.

Paso 5: Añadir el mobiliario
En lugar de dibujar los muebles individualmente, sólo tienes que buscar en la librería 3D de Cedreo, que cuenta con más de 7.000 piezas personalizables de muebles, electrodomésticos, objetos decorativos y revestimientos de superficies en 3D, y luego añadirlos a cada habitación. Además, ofrecemos una función anti colisión que evita que coloques accidentalmente elementos unos encima de otros al añadirlos al plano.

Paso 6: Hacer las personalizaciones finales
Revisa tus diseños y realiza los cambios necesarios antes de representar el plano definitivo. (Recuerda: puedes guardar varias versiones de un plano si deseas presentar diferentes opciones a un cliente). Ten la tranquilidad de saber que los cambios son rápidos y fáciles de hacer si es necesario.

Paso 7: Finalizar tu tabla de superfícies
El último paso en la creación de un plano con medidas es finalizar la tabla de superficies en el dibujo. Decide qué partes de cada nivel se incluirán en los cálculos generales de la casa y si deseas personalizar las medidas de alguna zona. Sólo tienes que seleccionar qué dimensiones del plano de la casa deseas incluir en el plano final.

Preguntas Frecuentes Sobre los Planos de Casas Con Medidas
¿Puedo ocultar y editar las medidas en el plano?
Sí. Puedes añadir, ocultar y editar cualquier medida que necesites en el plano en el programa para hacer planos de Cedreo.
¿Puedo añadir medidas interiores y exteriores?
Sí. Puedes añadir medidas interiores y exteriores, así como medidas del terreno y de los objetos exteriores.
¿Necesito medidas para planificar mi distribución interior?
No necesitas las medidas para planificar la distribución interior, pero sí para garantizar que los materiales se encargan correctamente y que los electrodomésticos, elementos y muebles encajan en el entorno.
¿Cómo puedo calcular los metros cuadrados?
Calcular un plano con medidas puede llevar mucho tiempo. Lo mejor es medir la anchura y la longitud de cada habitación y multiplicarlas para calcular la superficie total. Cedreo lo hace por ti con una tabla de superficies que incluye las medidas de cada habitación del plano y de la superficie total interna y externa.


