Communiceer jouw visie met 3D-plattegronden
Maak snel en eenvoudig online 3D-plattegronden voor snellere verkoop
Eenvoudig een 3D-plattegrond tekenen van jouw huis
Creëer en personaliseer jouw ontwerp online

Genereer fotorealistische 3D-weergaven van jouw ontwerp

Cedreo biedt alles wat je nodig hebt om realistische 3D-plattegronden te maken
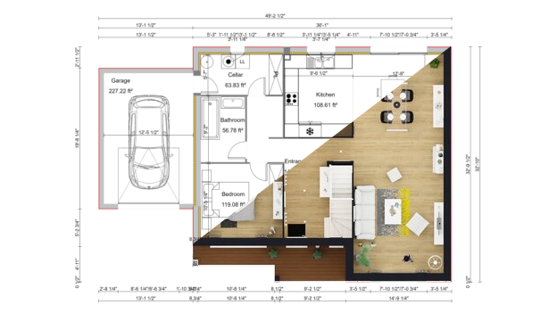
With 3D floor plans, you can show your clients every detail — traffic flow, doors, windows, floor coverings, wall colors, furniture, decor, and more.
3D floor plan top views help clients see how each room connects with others and how much floor space they’ll have once their furniture is in place.
meer informatieWaarom een 3D-plattegrond tekenen?
Je kunt 3D-plattegronden gebruiken om het ‘grote geheel’ met klanten te delen, evenals de details die jouw ontwerp uniek maken. Door een huis in 3D te tekenen kun je jouw huisontwerp tot leven brengen en sneller verkopen.
- Communiceer jouw visie naar jouw klanten
- Help jouw klanten zich voor te stellen hoe elke kamer eruit zal zien als deze klaar is
- Voorkom misverstanden over de indeling en algemene stijl van het huis
Met 3D-visualisaties voor huizen kunnen huizenbouwers, verbouwers en interieurontwerpers het aantal revisies verminderen en het goedkeuringsproces verkorten.
meer informatie

Personaliseer jouw ontwerpen eenvoudig
Visualiseer jouw project in 3D terwijl je een 2D-plattegrond tekent. De tekenfase wordt nog eenvoudiger en efficiënter.
Personaliseer en pas de stijl van de materialen, texturen en kleuren aan, evenals het meubilair en de inrichting.
meer informatieMet een 3D-plattegrond kun je laten zien:
- Muren, scheidingswanden, ramen en deuren
- Gemeubileerde en ongemeubileerde kamers
- Meerdere realistische vloerbedekkingen voor elke kamer
- Indeling binnen en buiten
- Verschillende aanzichten van de woning (door de tekeningen te draaien)

Onweerstaanbare 3D-plattegronden die deals sluiten
Met Cedreo kun je eenvoudig meerdere weergaven van jouw ontwerpen maken. In minder dan 5 minuten kun je professionele 3D-plattegronden genereren die jouw visie aan jouw klanten overbrengen en hen helpen te begrijpen hoe hun ruimte eruit zal zien.

Bovenaanzicht met externe details
Toon jouw klanten een bovenaanzicht met het gazon, de patio en het landschap.

Bovenaanzicht zonder achtergrond
Concentreer je op de indeling van de woning. Het bovenaanzicht van jouw huis in 3D kan volledig gemeubileerd en gedecoreerd zijn, of ongemeubileerd.

Isometrische 3D-plattegrond
Kies de isometrische weergave om de muurkleuren, ramen en deuren te zien, en zoom in op specifieke gebieden om de kleinste details en texturen te bekijken.

Commerciële plattegronden
Visualiseer de indeling en verkeersstroom van commerciële ruimtes, voor plattegronden van winkels, kantoren en hotels.

Per kamer
Je kunt een ontwerp maken voor een hele woning of slechts voor één kamer of ruimte. Als je je alleen op de kelder of de keuken concentreert, kun je een 3D-plattegrond creëren voor alleen de ruimte die je aan het verbouwen bent.

Voor elk woningtype
Een atypisch huis bouwen, zoals een tiny house, een barndominium of een containerwoning? Je kunt eenvoudig 3D-plattegronden maken voor elke ruimte/grootte.
Praktische functies om jouw 3D-ontwerpen te verbeteren
Teken de plattegrond in 2D en bekijk tegelijkertijd het resultaat in 3D. Voeg meubilair en decoratie toe en genereer vervolgens met één klik jouw 3D-weergave.

Altijd online toegang
Cedreo is 100% online, dus je kunt jouw ontwerp wijzigen waar je ook bent. Het enige wat je nodig hebt is een laptop en internetverbinding.

Selecteer de beste hoek
Met één klik kun je jouw huisontwerp draaien om meerdere perspectieven te tonen.

In- of uitzoomen
Toon de volledige plattegrond of zoom in om specifieke kamers en de kleinste details te tonen.

Bewaar perspectieven
Sla de camerapositie op om later een nieuwe weergave te genereren met exact hetzelfde perspectief.

Maak binnen enkele minuten een 3D-plattegrond
Genereer de 3D-plattegrondweergave met slechts één klik en bekijk de voortgang van jouw weergave in realtime.

Ga door met werken tijdens het maken van de rendering
Je kunt verder aan jouw project werken terwijl Cedreo jouw 3D-weergave genereert.

Full HD download
Download jouw 3D-weergave in een van de twee formaten: HD (1280×720) of Full HD (1920×1080).

Eenvoudig downloaden
Open jouw plannen in de online projectgalerij en download als JPG of PDF.
Veelgestelde Vragen
Hoe converteer ik 2D-plattegronden naar 3D?
Met de plattegrondsoftware van Cedreo kun je tegelijkertijd 2D-tekeningen in 3D bekijken. Met slechts één klik kun je heen en weer schakelen tussen de weergaven die je wilt bewerken.
Biedt Cedreo vooraf gebouwde plattegrondsymbolen?
Plattegrondsymbolen tonen verschillende elementen op een 2D-plattegrond, naast additionele 3D elementen. Cedreo heeft een bibliotheek met 400 plattegrondsymbolen waarmee aannemers precies weten waar de verschillende elementen zich in het nieuwe huis zullen bevinden.
Hoeveel kost Cedreo?
Cedreo heeft een gratis versie waarmee je één project en vijf renders kunt maken met een beperkt aantal meubels, materialen en symbolen. Het persoonlijke plan bedraagt $99/project met onbeperkte toegang tot de object- en materiaalbibliotheken. Het Pro-plan kost $ 119/maand, waarmee je onbeperkte projecten voor één gebruiker krijgt. Ten slotte is er het Enterprise-aanbod van $ 149/per gebruiker/per maand en dat bevat geavanceerde functies.
Hoe teken ik een 3D-plattegrond?
Je kunt helemaal opnieuw beginnen met tekenen in 2D of een plattegrond importeren en beginnen met overtrekken. In een apart venster komt jouw 2D-plattegrond in 3D tot leven. Vervolgens kun je in 3D bewerken om verschillende elementen toe te voegen, zoals meubilair, verlichting, materialen en ramen/deuren.